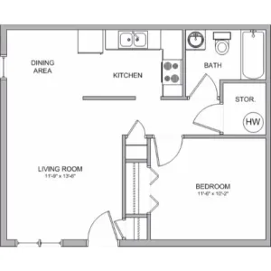
1 Bed | Senior Community

Amenities
Apartment Amenities
• Full Kitchen with Energy Efficient Appliances
Community Amenities
• Furnished Community Room
• On-Site Laundry Facilities
Neighborhood
Welcome to Pleasant Hill Properties, located in the city of , . Pleasant Hill Properties is a Senior Community with an abundance of apartment and community amenities. We are located near grocery stores, pharmacies, banks, restaurants and doctor’s offices. The surrounding community provides modern conveniences designed to complement your lifestyle. To learn more about our apartment community and all that it has to offer, call 816.540.5671 today.
